LMN Architects, 2013-2016
Project Status: Built, Opened 2019
Delivery Method: GCCM (CM at Risk)
Click for Hyatt Recency Seattle’s home page.
Experience
Project Phases: Schematic Design, Design Development, Construction Documents, Construction Administration
Responsibilities: Joined team during Schematic Design of a previous, larger version known as 9th and Stewart that occupied a full city block. After a 6-month hold, the client elected to pursue a smaller project occupying 3/4 of the same block. I rejoined the team during this new project’s inception and worked through Construction Documents. Although I participated in many aspects of the process for approximately 3 years, my main contribution involved technical coordination with the structural, MEP, and hospitality consultants, amongst others. Due to the building’s scale, team size, and site and programmatic complexity, this project has been the most difficult and challenging of my career to-date.
The earlier, larger version of this project was known as 9th and Stewart and was over 2 million square feet. It would have been one of the largest facilities of its kind in the western United States. It was a politically-charged site and project from the beginning and required an alley vacation from the city.

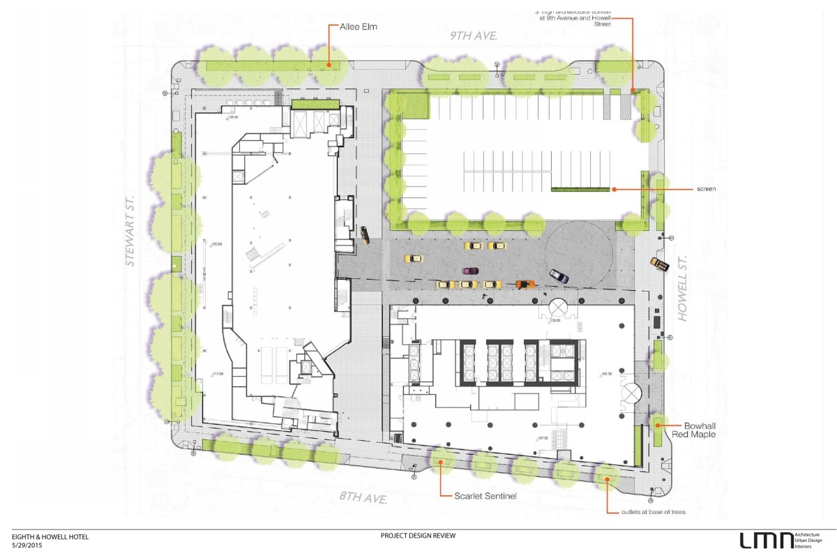
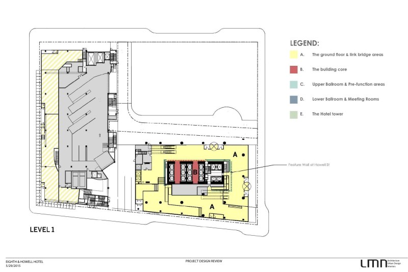
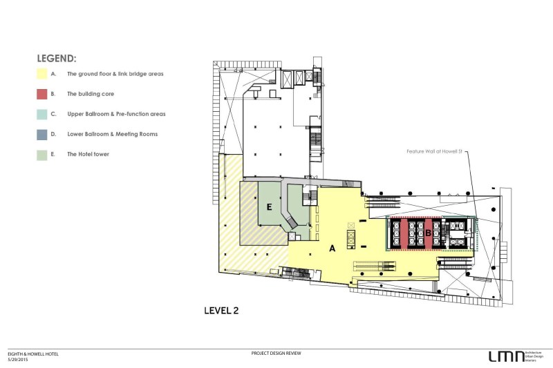
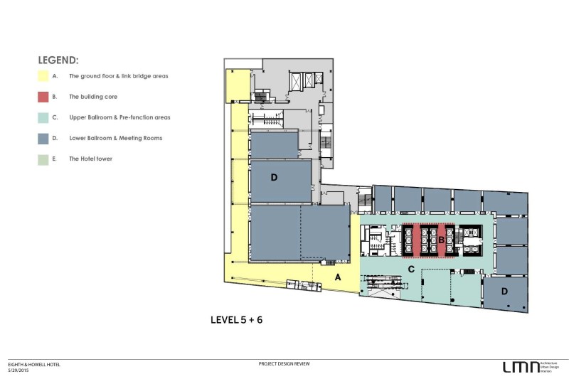
Eventually the client decided to move forward with a smaller version, which was completed and opened in early 2019 and is known as the Hyatt Regency Seattle. The 8-level podium covers 3/4 of a downtown urban block at a prominent intersection in downtown Seattle. The ground level is highly transparent and includes the hotel lobby, porte-cochere, and various retail functions. There is a limited selection of materials, including structural glass that reaches nearly 50 feet tall at some locations at ground level. The podium and tower use precast concrete sandwich panels to create a bold, monolithic gesture. It provides 1,400,000 square feet of hotel, convention, and retail space, is 500 feet tall, and has 1264 hotel rooms.


Plans and Sections – Click thumbnails for slideshow









Select construction photos – Click thumbnails for slideshow






Additional renderings – Click thumbnails for slideshow





The building employs a variety of structural systems. Below grade it uses mild reinforced concrete, with a large mat slab foundation, approx. 12 feet thick, underneath the tower. The podium structure underneath the tower, and the tower itself, use post-tensioned concrete. As the tower meets the podium, large steel transfer trusses shift two different column grids. This was done because the hotel floor plans above and the meeting room spaces below required different grids to function appropriately.
A seismic isolation joint separates the podium into two separate structures. The remainder of the podium, that without the tower above it, uses a steel structure with traditional concrete slabs and steel braced frames for lateral support.
Structural Diagrams – Click thumbnails for slideshow





Select section perspectives – Click thumbnails for slideshow





Additional Interior Renderings – Click thumbnails for slideshow






Owner/Developer: R.C. Hedreen Co.
Associate Architect: Graham Baba
General Contractor: Sellen Construction
Civil: Coughlin Porter Lundeen
Structural Engineer: Magnusson Klemencic Associates
Mechanical, Electrical, Plumbing, Acoustical Engineers: Arup North America, LTD
Mechanical and Plumbing Design Builder: MacDonald Miller
Electrical Design Builder: Holmes Electric Company
Lighting: Horton Lees Brogden Lighting Design
Hospitality: Zena Design Group
Food Service: Ricca Design Studios
Graphics/Signage: Studio SC
Landscape: Berger Partnership, P.S.
Parking: Graelic Parking
Vertical Transportation: Lerch Bates Inc.
